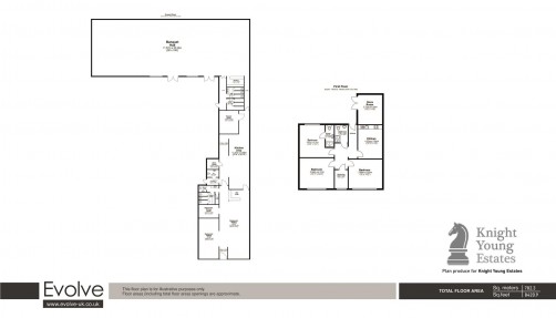
COMMERCIAL FREEHOLD INVESTMENT AVAILABLE Nestled on the bustling Bell Road in Hounslow, this impressive freehold commercial property offers a remarkable opportunity for those seeking a long term investment. Spanning an expansive 8,420 square feet, this property is designed to accommodate a variety of business needs, making it an ideal investment for entrepreneurs looking for a spacious and versatile space. The property boasts a large modernly renovated restaurant with comfortable seating for up to 70 diners. Additionally, there are 4 washrooms, ensuring convenience for both staff and clients. The first floor comprises of 3 double bedrooms flat, kitchen, bathroom and a store room. The layout is thoughtfully designed to maximise functionality and use of space. To the rear of the property there is a very large single storey banqueting hall that can seat up to 200 guests. There is future potential to develop this STTP. This property benefits from excellent transport links and a variety of local amenities, making it a prime location for any business/investment. Do not miss the chance to make this exceptional space your own. Please note this is current rented at £87,000 inc VAT p/a with a remaining lease of 7 years.
Nestled on the bustling Bell Road in Hounslow, this impressive freehold commercial property offers a remarkable opportunity for those seeking a long term investment. Spanning an expansive 8,420 square feet, this property is designed to accommodate a variety of business needs, making it an ideal investment for entrepreneurs looking for a spacious and versatile space.
The property boasts a large modernly renovated restaurant with comfortable seating for up to 70 diners. Additionally, there are 4 washrooms, ensuring convenience for both staff and clients. The first floor comprises of 3 double bedrooms flat, kitchen, bathroom and a store room. The layout is thoughtfully designed to maximise functionality and use of space.
To the rear of the property there is a very large single storey banqueting hall that can seat up to 200 guests. There is future potential to develop this STTP.
This property benefits from excellent transport links and a variety of local amenities, making it a prime location for any business/investment. Do not miss the chance to make this exceptional space your own. Please note this is current rented at £87,000 inc VAT p/a with a remaining lease of 7 years.